331 6535969
Italiano
FIMAA FIMAI

Ampi uffici con open space


5.000 € / mese
620 m2
5 Bagni
2 Posti auto
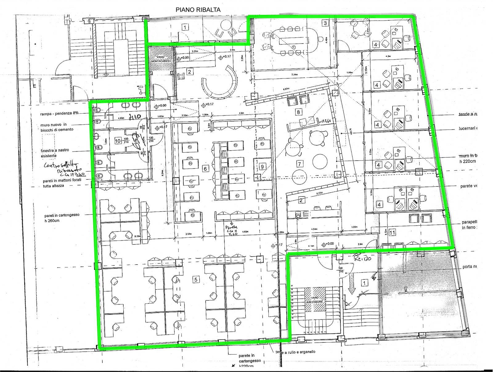
Ufficio al PIANO RIALZATO di 620 mq:
Ufficio con finestre su 3 lati.
Ampia zona open space, 7 uffici dirigenziali già creati, accesso al balconcino di 20 mq su cortile interno.

Caratteristiche interne:
Pavimento galleggiante, Impianto elettrico sotto pavimento con prese a pozzetto, Teleriscaldamento, Condizionamento autonomo, Serramenti in alluminio con doppi vetri, Ascensore con possibile accesso disabili, Montacarichi, Uscite di sicurezza.
2 Blocchi servizi separati uomo/donna. Servizio disabili già presente.

Nel 2024 è strato creato un nuovo accesso da strada, completamente accessibile ai disabili.

2 posti auto in autorimessa interrata.

Disponibili ulteriori posti auto
Disponibili magazzini interrati di circa 100 mq

Classe energetica: in fase di valutazione.
(G. IPE: consumo oltre 300 kwh/mq*a)

Contratto 6 anni + 6

Attualmente disponibili nello stesso immobile:
Spazio C
Spazio H
Caratteristiche principali
Codice
Carolina_Spazio_B_25_D
Città
Torino (Lingotto)
Categoria
Ufficio
Locali
8
Posti auto
2
Mq Balcone
20
Classe energetica
G
320 kWh/m²a
Lati Liberi
3
Riscaldamento
Tele Riscaldamento
Tipo Contratto
6+6 Anni
Accessori
Aria Condizionata, Ascensore, Bagno Handicap, Doppi Vetri, Rete Dati
Mappa
Via Carolina Invernizio 6, Torino (TO)
Cookie preference