331 6535969
Italiano
FIMAA FIMAI

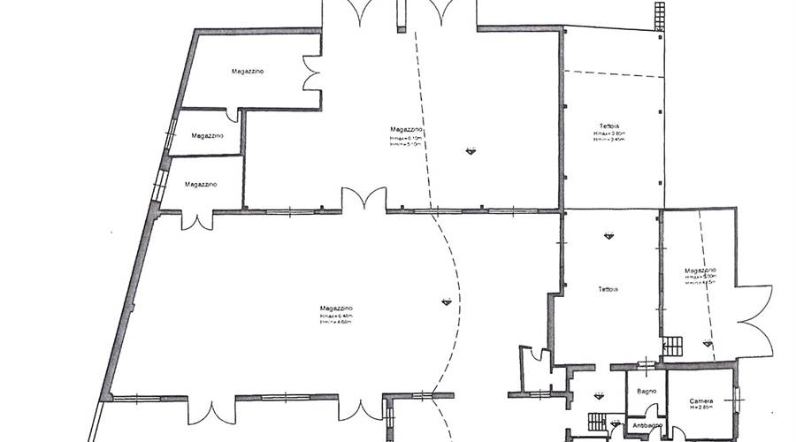
Capannone con passo carraio


300.000 €
820 m2
Capannone fronte piazza, adatto a qualsiasi uso, anche commerciale.
Presenta il tetto rifatto ed è stata sistemata la facciata lato strada.
Area di manovra e parcheggio fronte piazza.
Accessibile internamente con i mezzi.
Area di parcheggio e deposito esterna lato cortile.

Possibilità di realizzare progetto per la posa di pannelli fotovoltaici.
Privo di impianti.

Disponibile per rent to buy (affitto con riscatto)

Possibile rilevare mutuo esistente ottimo tasso fisso

Viene venduto nello stato attuale (da rifinire).

Possibilità di acquistare due appartamenti adiacenti con terreno.
Caratteristiche principali
Codice
castagnole_cap25_D
Città
Castagnole delle Lanze
Categoria
Capannone
Locali
10
Piano
Terra
Classe energetica
In fase di valutazione
Mappa
Strada Val bera 33, Castagnole delle Lanze (AT)
Cookie preference