331 6535969
Italiano
FIMAA FIMAI

Appartamento nuovo con terrazzo e veranda


240.000 €
116 m2
2 Camere
2 Bagni
In palazzina nuova proponiamo in vendita appartamenti di diverse metrature.
Torino, VIA COGNE 36

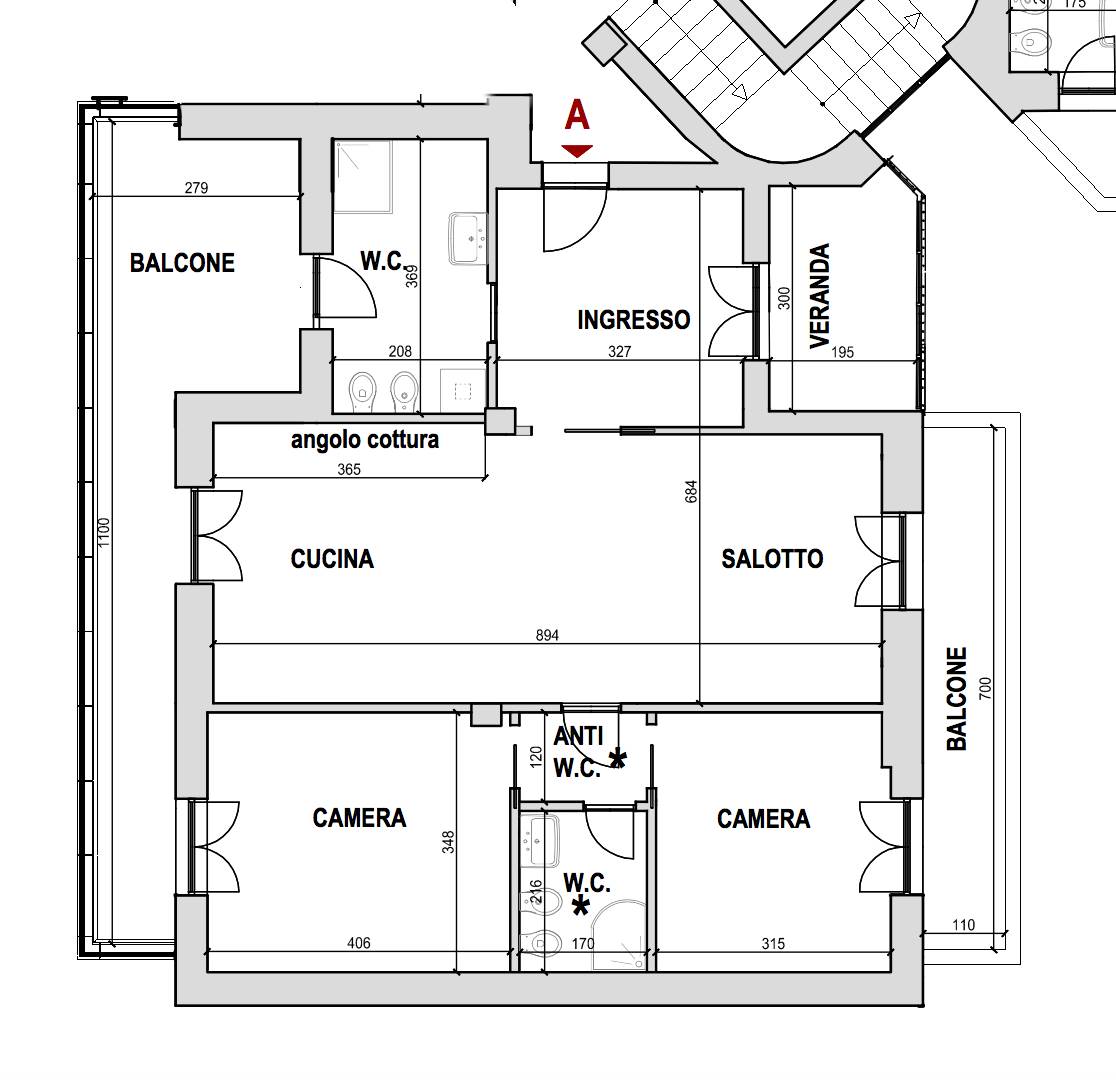
L'appartamento A1 si trova al primo piano, si sale anche con l'ascensore.
Si compone di: ingresso, ampia zona living con zona cucina, due camere da letto, doppi servizi.
C'è uno spazioso balcone verso la strada.
In più una veranda con serramenti in alluminio di 5,7 mq ed un secondo balcone si affacciano verso il cortile.

L'alloggio è stato terminato (pavimenti, rivestimenti, porte) ed è pronto per essere venduto.

Dotazioni tecniche:
L'impianto di riscaldamento è a pavimento, condominiale e ha i contabilizzatori di calore.
La pompa di calore è collegata ad una caldaia a gas.
Sono stati installati i contabilizzatori dell'acqua potabile (calda e fredda).
C'è la predisposizione per il condizionatore.
I serramenti sono in legno e alluminio con doppi vetri e predisposizione per le zanzariere.

La casa è stata progettata senza barriere architettoniche.

I muri sono stati isolati: c'è un isolamento di 12 cm tra le pareti interne e quelle esterne (cassa vuota) a cui è stato aggiunto un cappotto termico da 6 cm (anche sotto i balconi, per abbattere i ponti termici) e migliorare le prestazioni energetiche

L'atrio è spazioso e luminoso e ha una scala a vista.
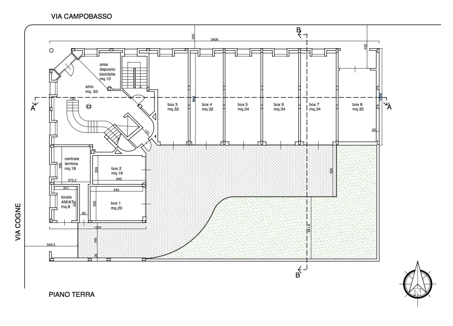
Sono stati previsti ampi spazi comuni, inclusi il parcheggio biciclette e area verde condominiale ed è stato installato un impianto fotovoltaico condominiale.

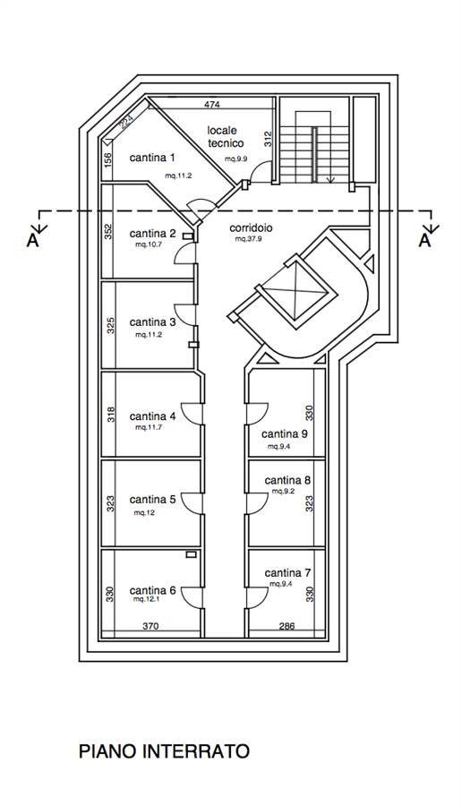
La cantina è ampia (9 mq) ed è inclusa nel prezzo.

Sono disponibili a parte box auto di ampia metratura, al piano terra, con accesso da cortile. Sono alti fino a 4 metri.

SPESE CONDOMINIALI Appartamento da Consuntivo 2022: 975 €
(Nel dettaglio: Generali: 390 €
Manutenzione ordinaria e personali: 443 €
Ascensore: 128 €
Acqua: a consumo + 7€)
SPESE DI RISCALDAMENTO da Consuntivo 2022: 165 € fisse + CONSUMI.
Caratteristiche principali
Codice
Cogne_KN_A1_25_D
Città
Torino
Categoria
Appartamento
Locali
4
Balconi
2
Terrazzi
1
mq Terrazzo
33
Piano
1
Classe energetica
A3
60,04
Stato Immobile
Nuovo
Giardino
Comune
Tipo Cucina
Abitabile
Tipo Impianto
Pavimento
Acqua Calda
Centralizzata
Infissi
Legno Doppio Vetro
Serramenti
Nuovo
Persiana
Persiana Metallo
Pavim. Giorno
Gres Porcellanato
Pavim. Notte
Gres Porcellanato
Pavim. Cucina
Gres Porcellanato
Pavim. Bagno
Gres Porcellanato
Accesso Disabili
Nessuna Barriera
Accessori
Ascensore, Bagno Handicap, Cancello Elettrico, Doppi Vetri, Fibra Ottica, Impianto Fotovoltaico, Porta Blindata, Veranda, Video Citofono
Mappa
via cogne 36, Torino (TO)
Video
Cookie preference